@廚具 廚房設計 500一字型 101時尚舍廚房廚具流理台工廠 廚房設計 廚具設計 作品分享:新北市新店周公館-進口韓國人造石檯面+木心板桶身+水晶門板+林內牌二機+Bosch洗碗機
其實日子是可以選擇的,這是我的想法.我們不用羨慕別人
坐擁豪宅,只要花小錢,你仍可以擁有不一樣的品味廚房,101時尚人生!!
這是我們一般的生活方式
裝潢前--廚房
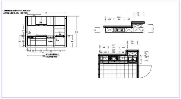
廚房設計約2坪大的空間,我們仍與客戶做每個細節的確認>
廚具工廠直營
3D立體圖,不論在門板的配色或把手的選擇,可供參考
門板:水晶門板
枱面:韓國進口人造石( 抗菌/抗污染易清潔/耐磨)
人造石枱面色彩搭配廚具及裝潢為優先考量)
3D立體圖廚房設計規劃
裝潢中
浴室防水工程
牆面粉光後才開始貼壁磚
木作及廚具施工過程
廚房規劃設計--量身訂製,現場組裝1天即完工
廚具工廠直營:在工廠施工為7-8個工作天
日本原裝內焰火爐頭強化玻璃瓦斯爐
林內牌二口檯面玻璃爐 RB-26GN內焰檯面爐
黑色強化玻璃美觀大方,好保養
林內牌隱藏式排油機(不銹鋼)RH-8063
如果你是個上班族,或是苦無外傭幫忙,洗碗機真是你的好幫手
博世家電台灣總代理-Bosch家電在台灣之行銷 -德國最大家電品牌
每天努力辛勤的工作,為的是什麼??
不是希望自己多點幸福,多點成就感!
裝潢後
給自己多一點機會,面對新生活,新挑戰,
家~~ 是您放鬆的地方.
面對每個不同的一天,不同的心情,照個鏡子再出門,
面對每個挑戰!!
每天給自己快樂一下,又何妨~~
Derek面盆:
Derek奈米馬桶
101時尚舍 | 室內裝潢 | 廚房設計 | 衛浴設計 | 廚具廚櫃設計
室內設計 |室內裝修 |室內裝潢 |裝潢估價參考 |木作工程|系統櫥櫃 |
提供免費現場丈量及咨詢
預約丈量0912288622林's
@101時尚舍新平價廚房設計--歐化廚具工廠直營-- 廚房設計
@101尚平價廚衛空間工程設計
廚具特價優惠活動:
代售國內:
豪山牌、櫻花牌、喜特麗等知名品牌排油煙機. 烘碗機、瓦斯爐、水槽、水龍頭、熱水器等廚具用品
代售國外:
各大知名品牌日本林內、義大利進口ARISTION 義大利進口SMEG 、 德國進口BEST、華財TEKA 電陶爐、 排油煙機、 烘碗機、瓦斯爐、洗碗機、 蒸爐、電烤箱等廚具用品 ILVE義大利原裝進口嵌入式四口安全瓦斯爐連烤箱等廚具用品
營業項目:
廚房設計, 衛浴設計, 廚具, 室內設計師, 室內裝潢, 廚具系統, 櫥櫃設計
廚具價格, 流理台, 廚具櫥櫃設計, 廚具工廠直營,廚房廚具流理台























沒有留言:
張貼留言